Pozemok stavebného projektu: 3.384 m² exkluzívnej komunity, Svederník - Marček pri Žiline, Cena v RK

Uložiť inzerát      Naše služby      Obhliadka

Info v RK

Detail ponuky

Číslo ponuky: ZA015966

Popis

Typ nehnuteľnosti Pozemky
Inzertná kategória Predaj
Stav nehnuteľnosti Projekt
Plocha 3384 m2
Kraj Žilinský kraj
Okres Žilina
Obec Svederník
Časť Marček

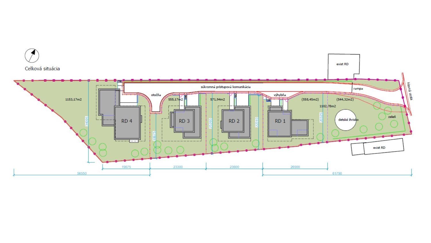
EXKLUZÍVNE! PREČO JE PROJEKT MEDOVÁ LÚKA INÝ?
Plánovaná výstavba iba 4 rodinných domov. Vlastná príjazdová cesta. Súkromie, aké často nenájdete.

Váš pozemok: 3.385,17 m² slnečného rovinatého pozemku + 798 m² podiel na prístupovej ceste.
Váš benefit: Môžete si vybrať susedov alebo investovať do vlastnej rezidencie.
Vaše okolie: Lokalita vyhľadávaná pre modernú výstavbu, romantická kaplnka, lúky plné medonosných kvetov.

Územný plán schválený, stavebné povolenie bude k dispozícii. Inžinierske siete (elektrina a voda) vybudované v réžii predávajúceho. Spevnená príjazdová cesta z makadamu bude vo vlastníctve budúcich majiteľov pozemkov.

SVEDERNÍK – MARČEK = ŽILINA BEZ MESTSKÉHO RUCHU
9 minút do Žiliny, 15 minút do jej centra. Bytča 12 minút.
Kompletná občianska vybavenosť: škôlka, predajne, služby, gastro prevádzky, kostol, knižnica, iné.
Pre aktívnych: okolité lúky lákajú včelárov, neďaleké lesy sú rajom hubárov, cyklotrasy na dosah. Rozhľadňa Svederník s výhľadmi na Váh a Hričovskú priehradu.
Pravidelné autobusové spoje. Rýchlostné cesty (Bratislava – Košice – Čadca) do 8 minút.

Cena: bližšie informácie vám poskytne realitný maklér alebo RK

Nájdete na stránke realityMGM.sk pod ID ZA015966.
Call centrum tel: 0910 86 11 86.



Svederník

Leží v severnej časti Bytčianskeho podolia na predhorí Javorníkov. Má hnedé lesné a nivné pôdy. Lesy sú len vo vyšších polohách severnej časti. Pestuje sa tu ovocie. Našlo sa tu žiarové pohrebisko lužickej kultúry z mladšej doby bronzovej. Obec sa spomína v r. 1321. Patrila panstvu Budatín, časť obce zemianskym rodinám Hatňanským a Rakovským. V r. 1598 mala 16 domov, v r. 1828 57 domov a 443 obyvateľov. Zaoberali sa poľnohosp. Donedávna tu bolo rozšírené tkanie plátna. Časť obyvateľov pracuje v priemyselných podnikoch v okolí. V obci je známe záhradníctvo.

Marček sa spomína v r. 1453. Patrila zemianskym rodinám Súľovských, Markovičovcov, Noršických a iných. V r. 1907 bola pripojená k Svederníku.

Oblazov sa spomína v r. 1438. Patrila zemianskym rodinám Príleských a Oblazovských. V r. 1907 obec splynula so Svederníkom.

Zárieč sa spomína v r. 1598. Patrila Zárieckym, Keblovským, Borčickým. V polovici 19. stor. splynula s Keblovom.

Keblov sa ako obec vyvinula v chotári Záriečia v 18. stor. Po splynutí so Záriečím bola ako obec Zárieč - Keblov pričlenená k Svederníku v r. 1918.

Medzi pamätihodnosti obce patrí zvonica v Marčeku zo začiatku 19. stor. a klasicistická kúria z polovice 19. stor. V obci sa narodili: historik J. Hložanský, botanik a bylinkár V. Mihalus, básnik A. Vanoch, národný umelec V. Hložník a grafik F. Hložník.
M. č.: Marček, Svederník, Zárieč - Keblov.


Okres Žilina

Má rozlohu 815,08 km², žije tu 155 989 obyvateľov a priemerná hustota zaľudnenia je 191 obyvateľov na km² (údaje k 31. 12. 2014).

Územie susedí na severe s okresmi Čadca a Kysucké Nové Mesto, na západe s okresmi Bytča, Považská Bystrica a Ilava, na juhu s okresom Prievidza a na východe s okresmi Martin a Dolný Kubín.

Prvé písomné zmienky o väčšine obcí okolia Žiliny sú z 13. a 14. storočia. Neskôr, počas valašskej a kopaničiarskej kolonizácie, boli osídlené obce pri horných tokoch riek a na úpätiach hôr Malej Fatry (Lysica, Dolná, Horná Tižina, Terchová).

Obyvateľstvo starého kultúrneho územia úrodnejšej časti okolia Žiliny sa zaoberalo poľnohospodárstvom, roľníci horských kopaničiarskych obcí boli viac zameraní na chov hospodárskych zvierat. Obrábali aj vysoko položené polia a využívali horské pasienky v odľahlom chotári, kde mali vybudované letné príbytky a maštale, tzv. bačoviská (cholvarky). Väčší význam mal salašnícky chov oviec s produkciou mliečnych výrobkov, mäsa, vlny a kožušiny. Úžitok prinášalo napokon aj výdatné hnojenie košarovanej pôdy. Salašnícky forma chovu oviec sa do súčasnosti zachovala vo viacerých obciach severozápadného Slovenska, v Terchovej a Belej pri Varíne nadobudla charakter družstevnej veľkovýroby.


Žilinský kraj

Demografia

K 21. máju 2011, bolo na území Žilinského kraja 144 948 domov, t.j. 13,5 % z celkového počtu domov v Slovenskej republike (z toho 120 788 obývaných, t.j. 83,3 %). Žilinský kraj bol v počte domov na druhom mieste za Nitrianskym krajom (podiel 16,2 %). Spomedzi okresov kraja najvyšší počet domov sa nachádzal v Žiline 20,3 % a najmenej v Turčianskych Tepliciach 3,3 %. Obývaných domov bolo v okrese Žilina 21,1 % z úhrnu za kraj a v Turčianskych Tepliciach 3,2 %.

Geologická charakteristika

Celé toto hornaté územie spadá z geomorfologického hľadiska do Západných Karpát. Horské masívy v tejto lokalite sa sformovali pomerne nedávno, v paleogéne. Zásluhou pohybov príkrovov sa vyzdvihovali pôvodné morské sedimenty, z ktorých postupne vznikli impozantné údolia. Rieka Váh územie nápadne rozdeľuje na dve časti:

  • severná zahŕňa pohoria: Tatry, Skorušinské vrchy, Oravské Beskydy, Oravská Magura, Oravská vrchovina, Chočské vrchy, Krivánska Fatra, Kysucké Beskydy, Kysucká vrchovina a Javorníky
  • južná zahŕňa pohoria: Nízke Tatry, Veľká Fatra, Lúčanská Fatra a Strážovské vrchy

Dejiny

Po páde Veľkomoravskej ríše v roku 907, ku ktorej územie patrilo, bolo od 12. storočia prakticky až do roku 1918 súčasťou uhorského kráľovstva. V 13. storočí na obranu proti mongolským nájazdom bola vybudovaná sieť hradov (Hričov, Považský, Košecký, Lietavský, Strečniansky). 16. storočie znamenalo pre miestnych obyvateľov chudobu a strach, hlavne pred tureckou okupáciou a živelnými pohromami. Ku koncu 19. storočia tu bola zavedená železnica a v údolí Váhu začal prekvitať priemysel.


Stručná história Slovenska

Prvý štátny útvar Slovanov na území dnešného Slovenska bola Samova ríša (7. storočie), neskôr Nitrianske kniežatstvo (začiatok 9. storočia), ktorého spojením s Moravským kniežatstvom vznikla v roku 833 Veľká Morava. Od polovice 10. do konca 11. storočia sa územie Slovenska postupne začlenilo do Uhorska, ktoré sa v roku 1526 stalo súčasťou Rakúskej monarchie (Habsburskej monarchie), od roku 1867 nazývanej Rakúsko-Uhorsko. Po rozpade Rakúsko-Uhorska v roku 1918 bolo Slovensko súčasťou Česko-Slovenska až do roku 1993 (okrem obdobia samostatnosti počas vojnovej Slovenskej republiky). 1. januára 1993 vznikla rozdelením tohto štátneho útvaru samostatná Slovenská republika.

Slovenská republika je parlamentnou demokraciou, štátnym jazykom je slovenčina. Od 1. mája 2004 je Slovensko členom Európskej únie, od 21. decembra 2007 je členom Schengenského priestoru. Od 1. januára 2009 je 16. členom Európskej menovej únie – eurozóny a oficiálnou menou sa stalo euro, ktoré vystriedalo slovenskú korunu.